Bahco
Bahco ACJ Luftvärmeaggregat + Bahco ACF (Minimaster/Minivent)
Ett system med ett luftvärmeaggregat som i huvudsak var installerade i Boro-hus och som oftast var monterat i groventrén samt ett FTX-aggregat med korsströmsvärmeväxlare som oftast placerades mellan köksskåpen ovanför spisen i kombination med en spiskåpa som monterades under aggregatet. Systemet var vanligt i villor på 1980- och början av 90-talet, med nu ålderdomlig styr och reglerfunktioner.
Reservdelar börjar att utgå och därmed blir de svåra att få tag på.
Aggregaten har energislukande AC-motorer.
Swegon CombiWin + CASA R2
Genom att byta ut luftvärmeaggregatet och FTX-aggregatet mot ett modernt aggregat med roterande värmeväxlare och energisparande EC-motorer, så kan du spara mer än 5700 kWh i energi per år. Du kan ta bort kondensavloppet som det gamla FTX-aggregatet hade. Samtidigt får du en betydligt bättre osuppfångningsförmåga i din spiskåpa.
Både CASA R2 och CombiWIn aggregatet är dessutom måttmässigt mycket lika de gamla aggregaten och även kanalanslutningarna är mycket lika (förutom att det saknas en bakre rektangulär anslutning) vilket gör utbytet både enkelt och smidigt.
Jämförelsetabell
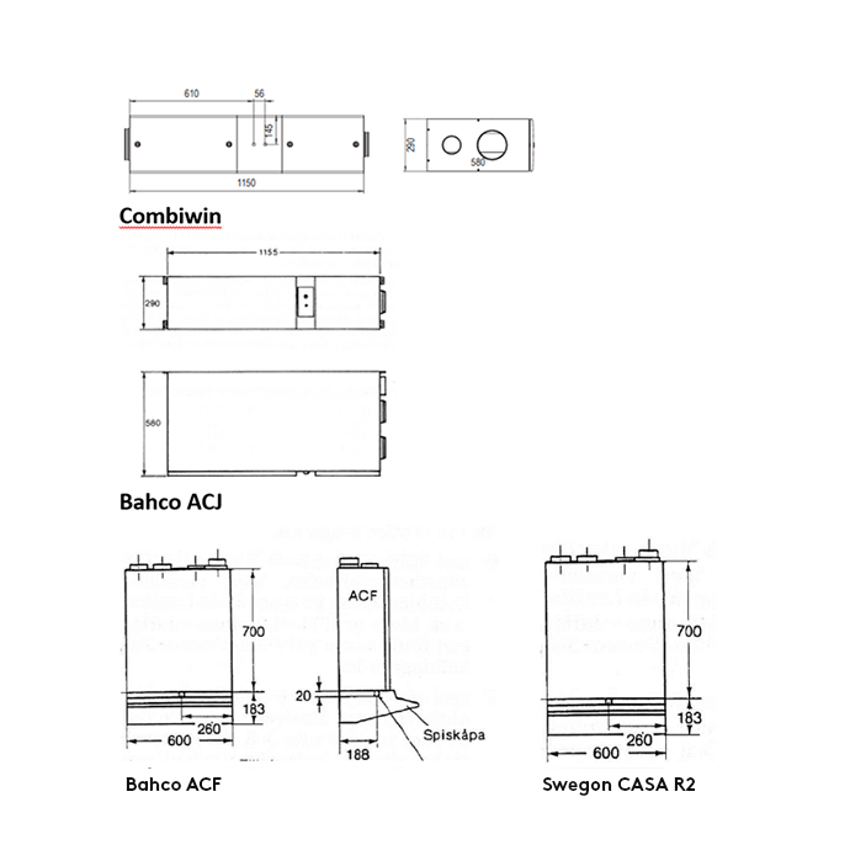
Måttskisser
Bilderna till höger visar måtten på
Swegon CASA CombiWin och Bahco ACJ.
Bilderna till höger visar måtten på Bahco ACF och CASA R2
Observera att R2-aggregatets djup är 317 mm
Kanalernas placeringar
På bilden till vänster visas CASA R2 aggregatets kanalplaceringar och på bilden till höger Bahco ACF´s kanalplaceringar.
Då kanalernas placering är lika med Bahco ACF så krävs det minimalt med arbete vid utbytesinstallationen.
Hitta installatör
Behöver du hjälp att installera? Eller är du kanske osäker på vilka produkter och lösningar som är bäst för dina behov i hemmet? Tala med en erfaren auktoriserad installatör så får du hjälp.
